{"pageID":null}
5211 N Forestdale Cir
Dublin, CA 94568
Full Gallery
Video Tour
Property Details
$4,245
Per Month
3
Beds
2.5
Baths
2220
sqft
•
For Rent
Building Type:
Single Family
Deposit:
$5,305
Pets:
Yes
Date Available:
11-28-2025
Pet Type:
Dogs , Cats
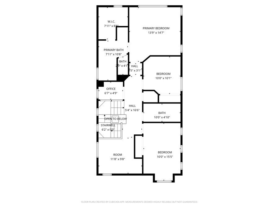
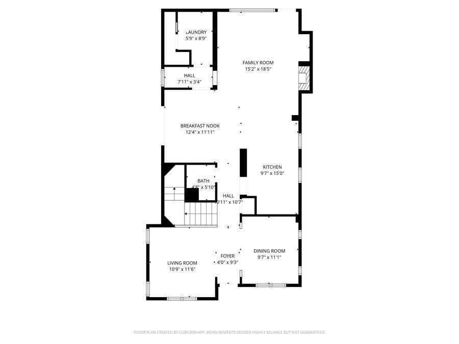
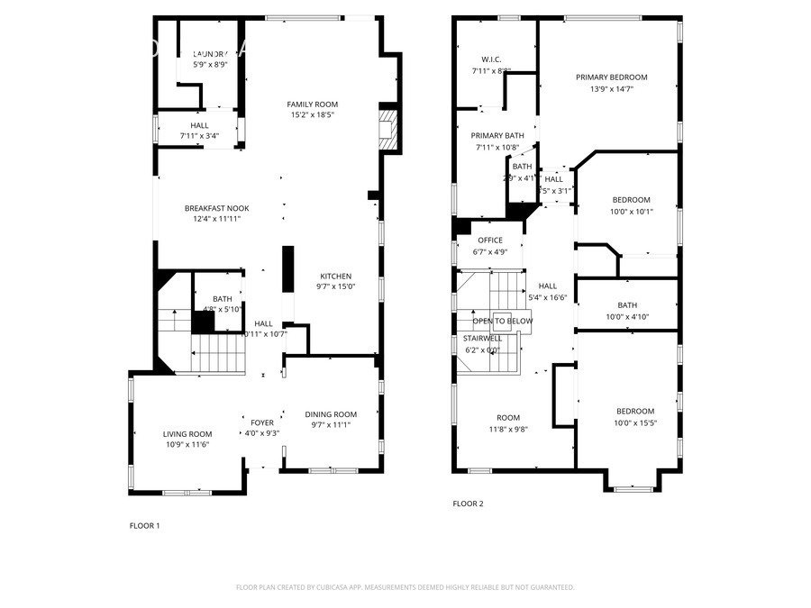
3 bed/2.5 bath 2,220 sq ft Home in Desirable Dublin Ranch Neighborhood
---- SCHEDULE A SHOWING ONLINE AT: http://showmojo.com/lt/b8e892009e ----
Schedule a Showing Online
Enjoy a 3D Virtual Tour of this property at https://my.matterport.com/show/?m=bLgk4xSTb39
Come see this great 2-story 3 bedroom, 2.5 bathroom, 2,220 sq. ft. single family home in the wonderful Dublin Ranch Community across from the highly rated John Green Elementary School. The home opens into a formal dining room on one side and a formal family room on the other. The dining room has a sliding glass door that opens onto the front patio and the family room has large windows for great natural light. The kitchen has tile counters with a bar top overlooking the living room, and tons of cabinet space for all your storage needs. The kitchen opens into a second dining room area with another large sliding glass door leading out to a side courtyard. The living room has a cozy gas fireplace and opens into the stone paved backyard with a hot tub. On the second floor of the home there is a second family room sitting opposite of the master suite. Two bedrooms and a full bathroom separate the family room and master suite, and there is a small office nook with built-in shelving to the left of the stairs. The large master bedroom has a private bathroom with dual sinks, a tub, standing shower and private toilet room. Off of the bathroom is a huge walk-in closet with built-in shelving. The property is complete with a separate laundry room and a 2-car attached garage. This family friendly neighborhood has several schools and parks within walking distance.
We are looking for a long-term tenant who will take excellent care of the house.
Available for move-in ASAP
Rent: $4,245.00/month
Security Deposit ranges from $5,305.00 - $8,490.00 unless you qualify for our zero security deposit option provided by Obligo. Applicants who meet all the Basic Criteria (http://www.advantagepms.com/rental-criteria/) are eligible for the minimum deposit. Applicants that do not meet all the Basic Criteria, but exceed the Minimum Criteria, may be approved with a higher security deposit. If you qualify for Obligo's service, you will not be required to pay a security deposit!
Minimum Lease Term: 12 months
Preferred Lease Term: 24 months
Pet Policy: 2 pets, max weight 100lbs are negotiable with a $500/pet security deposit increase and a $30/month pet admin fee for the first pet plus $20/month for additional pets. Applicants with pets are required to submit a pet application through a third-party pet screening service at https://apms.petscreening.com.
Renters Insurance: Required with $300,000.00 liability limit
Refrigerator: Included
Washer/Dryer: Included
Gardening: Tenant Responsibility
Hot tub/Spa: Tenant Responsible for Cleaning
Parking: 2-Car Garage
Utilities: All utilities are the Tenant responsibility
Showings are available by appointment only. Schedule a showing online by clicking the Schedule a Showing link. The property is professionally managed by Advantage Property Management Services. Leasing Contact: Harrison Smith (DRE# 01902063)

READ THIS IMPORTANT INFORMATION BEFORE YOU SCHEDULE A SHOWING
Please review the Rental Criteria at http://www.advantagepms.com/rental-criteria before you submit a rental application. There is a $50/adult non-refundable application fee and ALL adults residing in the property must apply. We will (1) verify your identification; (2) check your credit report, unless you receive a Government Rent Subsidy and request to provide verifiable alternative evidence instead of a credit report no later than when the application is submitted; (3) verify your household income and employment, if applicable; and (4) verify your rental history with previous landlords. Most applications are processed in 2-3 business days from the date we receive a completed application and all supporting documentation.
Security Deposits are calculated using a risk-based model. Applicants who meet all the Basic Criteria may be approved at the advertised security deposit amount. Applicants who do not meet the Basic Criteria but exceed the Minimum Criteria may be approved with a higher security deposit, not to exceed the legal maximum. We offer a security deposit-free option for qualified tenants using Obligo billing authorization technology. Security Deposits for active-duty military and properties subject to AB12 cannot exceed 1x the rent.
Prior to move-in, proof of a current renters insurance policy with APMS listed as an Additional Interest and coverage of at least $300,000 for personal liability must be provided.
Please DO NOT APPLY if your credit score is below 650, your household income is less than 2.7x the asking rent, you have ever been evicted, you have negative rental history, or your pets do not comply with this property??s pet policy. Visit http://www.advantagepms.com/rental-criteria for more information.
If you have a Government Rent Subsidy and elect to provide verifiable alternative evidence of your reasonable ability to pay rent instead of a credit report, you must inform APMS when you submit a rental application. Failure to notify us at this time may disqualify you from participation in alternative verification. We will provide a list of required documentation after we receive a request. All documentation must be provided within 48-hours. Contact us to learn more about this process and the required documentation.
All verifiable sources of income will be considered. Pursuant to CA Gov. Code 12955(o), the income multiple is based on the amount of rent that will be paid by the Applicant (not the total rent amount) if the Applicant has a rental voucher or other housing subsidy.
To help ensure all residents understand our animal policies, all Applicants must submit an animal application at https://apms.petscreening.com, even if they don't have one.
All Information Deemed Reliable But Not Guaranteed. APMS is not responsible for content published by third-party listing websites (i.e. Zillow, Trulia, Hotpads, etc).
Central Heat/Air
Community Pool/Spa
Disposal
Pets Allowed
Refrigerator Included
Washer/Dryer In Unit
Washer/Dryer Provided
Schedule a Showing Online
Enjoy a 3D Virtual Tour of this property at https://my.matterport.com/show/?m=bLgk4xSTb39
Come see this great 2-story 3 bedroom, 2.5 bathroom, 2,220 sq. ft. single family home in the wonderful Dublin Ranch Community across from the highly rated John Green Elementary School. The home opens into a formal dining room on one side and a formal family room on the other. The dining room has a sliding glass door that opens onto the front patio and the family room has large windows for great natural light. The kitchen has tile counters with a bar top overlooking the living room, and tons of cabinet space for all your storage needs. The kitchen opens into a second dining room area with another large sliding glass door leading out to a side courtyard. The living room has a cozy gas fireplace and opens into the stone paved backyard with a hot tub. On the second floor of the home there is a second family room sitting opposite of the master suite. Two bedrooms and a full bathroom separate the family room and master suite, and there is a small office nook with built-in shelving to the left of the stairs. The large master bedroom has a private bathroom with dual sinks, a tub, standing shower and private toilet room. Off of the bathroom is a huge walk-in closet with built-in shelving. The property is complete with a separate laundry room and a 2-car attached garage. This family friendly neighborhood has several schools and parks within walking distance.
We are looking for a long-term tenant who will take excellent care of the house.
Available for move-in ASAP
Rent: $4,245.00/month
Security Deposit ranges from $5,305.00 - $8,490.00 unless you qualify for our zero security deposit option provided by Obligo. Applicants who meet all the Basic Criteria (http://www.advantagepms.com/rental-criteria/) are eligible for the minimum deposit. Applicants that do not meet all the Basic Criteria, but exceed the Minimum Criteria, may be approved with a higher security deposit. If you qualify for Obligo's service, you will not be required to pay a security deposit!
Minimum Lease Term: 12 months
Preferred Lease Term: 24 months
Pet Policy: 2 pets, max weight 100lbs are negotiable with a $500/pet security deposit increase and a $30/month pet admin fee for the first pet plus $20/month for additional pets. Applicants with pets are required to submit a pet application through a third-party pet screening service at https://apms.petscreening.com.
Renters Insurance: Required with $300,000.00 liability limit
Refrigerator: Included
Washer/Dryer: Included
Gardening: Tenant Responsibility
Hot tub/Spa: Tenant Responsible for Cleaning
Parking: 2-Car Garage
Utilities: All utilities are the Tenant responsibility
Showings are available by appointment only. Schedule a showing online by clicking the Schedule a Showing link. The property is professionally managed by Advantage Property Management Services. Leasing Contact: Harrison Smith (DRE# 01902063)

READ THIS IMPORTANT INFORMATION BEFORE YOU SCHEDULE A SHOWING
Please review the Rental Criteria at http://www.advantagepms.com/rental-criteria before you submit a rental application. There is a $50/adult non-refundable application fee and ALL adults residing in the property must apply. We will (1) verify your identification; (2) check your credit report, unless you receive a Government Rent Subsidy and request to provide verifiable alternative evidence instead of a credit report no later than when the application is submitted; (3) verify your household income and employment, if applicable; and (4) verify your rental history with previous landlords. Most applications are processed in 2-3 business days from the date we receive a completed application and all supporting documentation.
Security Deposits are calculated using a risk-based model. Applicants who meet all the Basic Criteria may be approved at the advertised security deposit amount. Applicants who do not meet the Basic Criteria but exceed the Minimum Criteria may be approved with a higher security deposit, not to exceed the legal maximum. We offer a security deposit-free option for qualified tenants using Obligo billing authorization technology. Security Deposits for active-duty military and properties subject to AB12 cannot exceed 1x the rent.
Prior to move-in, proof of a current renters insurance policy with APMS listed as an Additional Interest and coverage of at least $300,000 for personal liability must be provided.
Please DO NOT APPLY if your credit score is below 650, your household income is less than 2.7x the asking rent, you have ever been evicted, you have negative rental history, or your pets do not comply with this property??s pet policy. Visit http://www.advantagepms.com/rental-criteria for more information.
If you have a Government Rent Subsidy and elect to provide verifiable alternative evidence of your reasonable ability to pay rent instead of a credit report, you must inform APMS when you submit a rental application. Failure to notify us at this time may disqualify you from participation in alternative verification. We will provide a list of required documentation after we receive a request. All documentation must be provided within 48-hours. Contact us to learn more about this process and the required documentation.
All verifiable sources of income will be considered. Pursuant to CA Gov. Code 12955(o), the income multiple is based on the amount of rent that will be paid by the Applicant (not the total rent amount) if the Applicant has a rental voucher or other housing subsidy.
To help ensure all residents understand our animal policies, all Applicants must submit an animal application at https://apms.petscreening.com, even if they don't have one.
All Information Deemed Reliable But Not Guaranteed. APMS is not responsible for content published by third-party listing websites (i.e. Zillow, Trulia, Hotpads, etc).
Central Heat/Air
Community Pool/Spa
Disposal
Pets Allowed
Refrigerator Included
Washer/Dryer In Unit
Washer/Dryer Provided
- Year Built
- 2000
Parking
- Parking Type
- Attached Garage
- Spaces Available
- 2
Features and Amenities
- Hardwood floors
- Dishwasher
- Fireplace
- Garbage disposal
- Air conditioning
- Garage parking
- Cable ready
- Spa
- Dogs ok
- Cats ok
- Dogs ok up to 40 lbs
- Dogs ok up to 25 lbs
- Washer/dryer included
